(PROPERTY CODE : DH-401) KG SG KELUGOS

$ 148,000
(PROPERTY CODE : DH-401) KG SG KELUGOS - image 1

(PROPERTY CODE : DH-401) KG SG KELUGOS - image 2

(PROPERTY CODE : DH-401) KG SG KELUGOS - image 3

Specification


Category:
Brunei Real Estate
Property type:
Houses
Ad type:
For Sale
Price:
$ 148,000
House type:
2 Storey Detached House
Bedrooms:
3
Bathrooms:
3
Region:
Tutong
City:
Pekan Tutong
Local area:
Kg Sg Kelugos

Description


Modern Double-Storey Detached House for Sale in Kg Sg Kelugos

Experience a peaceful lifestyle in a quiet and serene neighbourhood — perfect for families looking for comfort and convenience.

** Property Features:

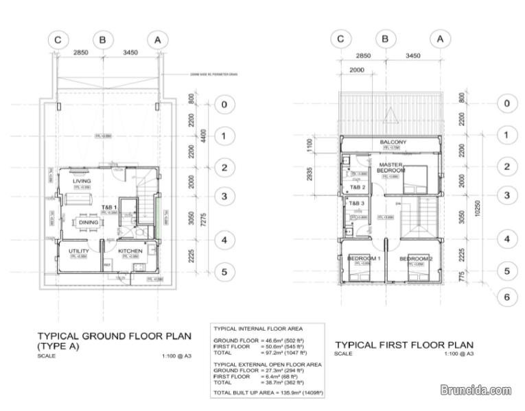
Ground Floor:
- Spacious living & dining area
- Common toilet
- Kitchen
- Utility room

First Floor:
- Master bedroom ensuite with balcony
- 2 bedrooms
- 1 common toilet
- Hallway

* Floor Area: 1,409 sq ft
* Land Size: 0.071 acres – 0.126 acres
* Tenure: Kekal
* Stage: Proposed
* Selling Price: $148,000 – $158,000
* Payment: Cash or bank loan only
* Prices are subject to change without prior notice

** Enjoy quiet surroundings and modern living at an affordable price! **

Interested, kindly call or whatsapp, 711 8577 (Alice)

Stay connected with us:
Facebook: G.A. Real Estate Agency
Instagram: g.a.realestate



Shop Safely
- Always meet seller in person.
- Check the item before you buy.
- Pay only after collecting the item. Learn more

©2025 Bruneida.com - The Online Marketplace of Brunei